1.Product introduction often-element weather station
The ten-element weather station is also called the ten-element automatic weather station, agricultural weather station. The ten-element weather station adopts a ten-element integrated sensor, which can measure wind speed, wind direction, air temperature, humidity, atmospheric pressure, light, optical rainfall, pm2.5, Real-time observation of meteorological elements such as PM10 and noise.
The WX-CQ10 small automatic weather station (with provincial calibration certificate) is a high-precision meteorological observation equipment that is highly integrated, has low power consumption, can be quickly installed, and is easy to use for field monitoring.
The equipment consists of five parts: meteorological sensor, collector, solar power supply system, pole bracket, and cloud platform.It requires no debugging and can be deployed quickly. It is widely used in meteorology, agriculture, forestry, environmental protection, oceans, airports, ports, scientific expeditions, campus education and other fields.
2. Product features
1. Low-power collector: static power consumption is less than 50uA
2. Standard GPRS networking, support for extended Bluetooth and wired transmission
3. 7-inch Android touch screen, version: 4.4.2, quad-core Cortex?-A7, 512M/4G
4. Support modbus485 sensor expansion
5. Solar charging management MPPT automatic power point tracking
6. Three-meter carbon steel bracket, two-section flange butt joint
7. SMS alarm, send SMS to the designated mobile phone after exceeding the limit
8. ABS material protective box, corrosion-resistant, anti-oxidation, waterproof grade IP66
3. Technical parameters
1) Collector power supply interface: GX-12-3P plug, input voltage 5V, with RS232 output Json data format, collector power supply: DC5V±0.5V peak current 1A,
2) Sensor modbus, 485 interface: GX-12-4P plug, output power supply voltage 12V/1A, equipment configuration interface: GX-12-4P plug, input voltage 5V
3) Solar powered, equipped with lead-acid battery, optional 30W 20AH/50W 40AH/100W 100AH. Charge controller: 150W, MPPT automatic power point tracking, efficiency increased by 20%
4) Data upload interval: adjustable from 30s to 65535s
5) 7-inch Android touch screen, screen size: 1024*600 RGB LCD
6) Some sensor parameters
Name | Measuring range | Resolution | Accuracy |
ambient temperature | -40~+60℃ | 0.1℃ | ±0.3℃ |
Relative humidity | 0~100%RH | 0.1% | ±2% |
light intensity | 0-200000Lux | 1Lux | ±2% |
Atmospheric pressure | 300~1100KPa | 0.1KPa | ±0.3hPa |
dew point temperature | -20~+50℃ | 0.1℃ | ±0.5℃ |
soil temperature | -50~+80℃ | 0.1℃ | ≤±0.2℃ |
soil moisture | 0~100% | 0.1% | ±2% |
Soil salinity | 0-20ms | ±0.1ms | ±2% |
Soil pH | 0-14 | 0.1 | ±0.2% |
wind direction | 0~360° (16 directions) | 1/16 | <3°(>1.0m/s) |
wind speed | 0~70m/s | 0.1m/s | ±(0.3+0.03V)m/s |
amount of rain | ≦4mm/min | 0.01mm | ±0.2mm |
UV radiation | 0~70W/㎡ | 1W/㎡ | ±2% W/㎡ |
sunshine hours | 0~24h | 0.1h | ±2%h |
total radiation | 0-2000W/m2 | 0.1W/m2 | Spectral range: 300-3000nm |
photosynthetically active radiation | 400~700nm | Sensitivity: 10~50μv/μmol·m-2·s-1 |
|
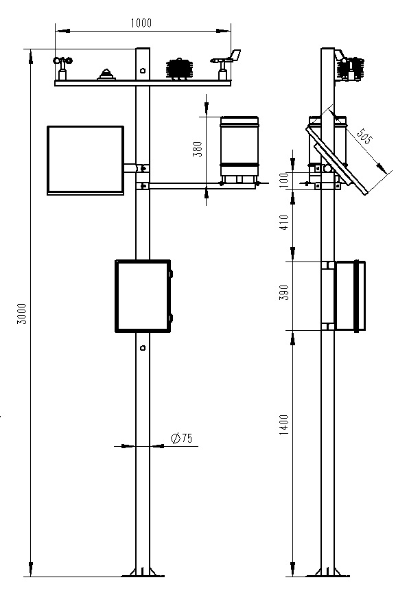
4. Product size chart

5. Product Structure Chart

6. Introduction to PC software
1. PC stand-alone version of data receiving, storage, viewing and analysis software
2. Support serial port data reception, processing and display
3. Support json string, modbus485 and other communication methods
4. The storage time can be set by oneself, and the collection time can be set by oneself in the modbus485 collection mode.
5. Support self-service adding, deleting, and modifying protocols, names, icons, etc. of monitoring parameters.
6. Support data post-processing function
7. Support external running of javascript scripts
7. Introduction to Android APP
1. Android stand-alone version of data receiving, storage, viewing and analysis software
2. Support Bluetooth data reception
3. After the mobile phone is asleep, the software receives and processes it in the background
4. JSON data automatically adds devices, and modbus devices support scanning QR codes to add devices.
5. Supports historical data viewing, analysis, and table export, and supports curve display and single data point viewing.
6. Support data post-processing function
7. Support external running of javascript scripts
8. Introduction to cloud platform
1. CS architecture software platform supports direct observation on mobile phones and PC browsers without the need to install additional software.
2. Support multiple accounts and multiple devices to log in
3. Support real-time data display and historical data display dashboard
4. Cloud servers and cloud data storage are stable and reliable, easy to expand, and load balanced.
5. Support SMS alarm and threshold setting
6. Support map display and view device information.
7. Support data curve analysis
8. Support data export table format
9. Support data forwarding, HJ-212 protocol, TCP forwarding, http protocol, etc.
10. Support data post-processing function
11. Support external running of javascript scripts
Product address:
http://www.diuzz.com/en/zidong/887.html